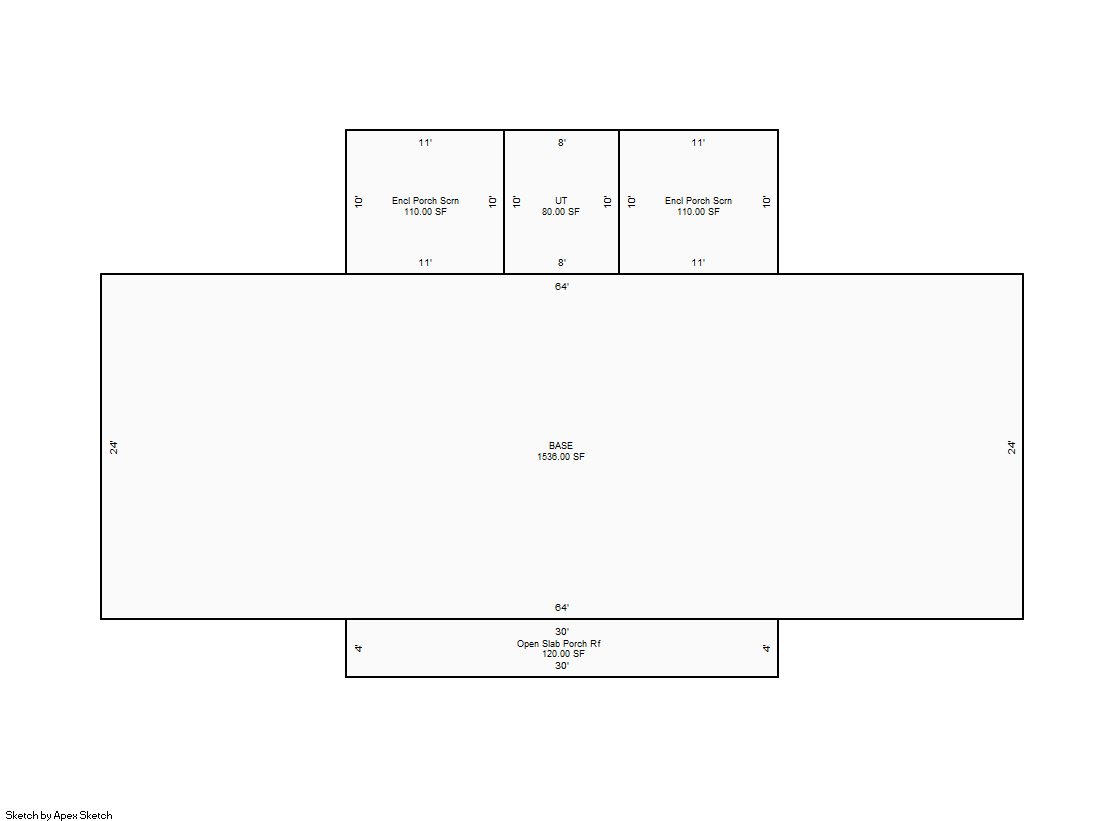
Charlotte County Property Appraiser Building Sketch(04)

Charlotte County Property Appraiser Building Sketch


Image gallery: Charlotte County Property Appraiser Website

Charlotte County Property Appraiser How to Check Your Property’s Value Charlotte County Property Appraiser How to Check Your Property’s Value C3 AI Property Appraisal in Charlotte County, Florida YouTube Charlotte County Property Appraiser Paul Polk GOVERNMENT History Charlotte County Property Appraiser Building Sketch